Chat with us, powered by LiveChat
6
Offices
187 Gladstone Road, Dandenong North, VIC 3175 - Thumbnail 1 - 15/04/2026
187 Gladstone Road, Dandenong North, VIC 3175 - Thumbnail 2 - 15/04/2026+ 3

187 Gladstone Road
Dandenong North vic 3175

Offices

1041 m2 (approx)
 
$1.85m - $1.95m

Agent

Robert Groeneveld

0404 881 634

Chloe McLindin

0439 948 005

Office Contact

Barry Plant Manningham

03 9842 8888

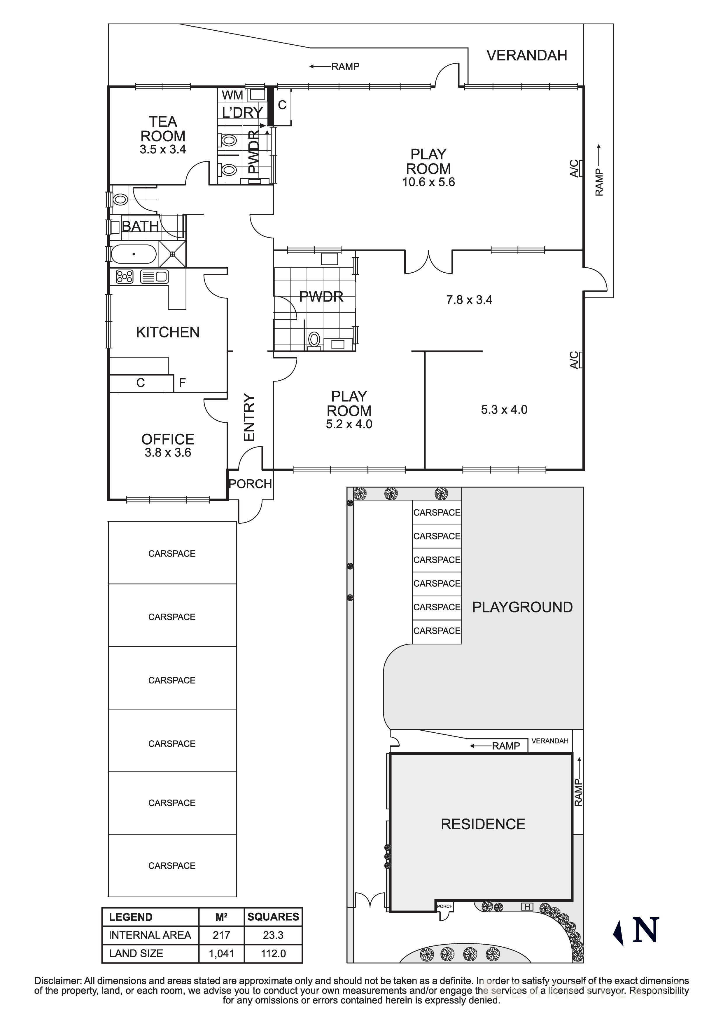
Set-and-Forget Investment Opportunity


Currently operating as the Century Star Early Education Centre, this is a dynamic & rare opportunity to secure a set-and-forget investment in a highly sought-after and well-connected Dandenong North locale.
Positioned on a substantial 1,041sqm, the property delivers a strong annual income of $115,989.24 (approx. $9,665.77 per month).
Securely leased to an established business, it offers ongoing & reliable returns, supported by a purpose-built facility with all essential infrastructure already in place.
Key Features Include:

* On-site parking for up to six vehicles
* Purpose-built layout with multiple playrooms
* Fully-equipped kitchen
* Office space
* Staff tea room
* Bathroom and laundry facilities
* Outdoor playground area for children
* Existing annual income of $115,989.24.
* Landholding of approx. 1041sqm
This is an ideal addition to any burgeoning property portfolio. Conveniently located, it is close to a host of essential amenities including public transport, shops and professional services, whilst enjoying easy access to the M3 and the Princes Hwy.

Agent

Robert Groeneveld

0404 881 634

Chloe McLindin

0439 948 005

Office Contact

Barry Plant Manningham

03 9842 8888

Dandenong North
vic 3175

Number of Residents
22,550
Median Sale Price
$760,000
Median Rental Price
$589p/w
Powered by Proptrack

Visit the Dandenong North Suburb Profile for detailed market insights and area information.