12
Townhouse

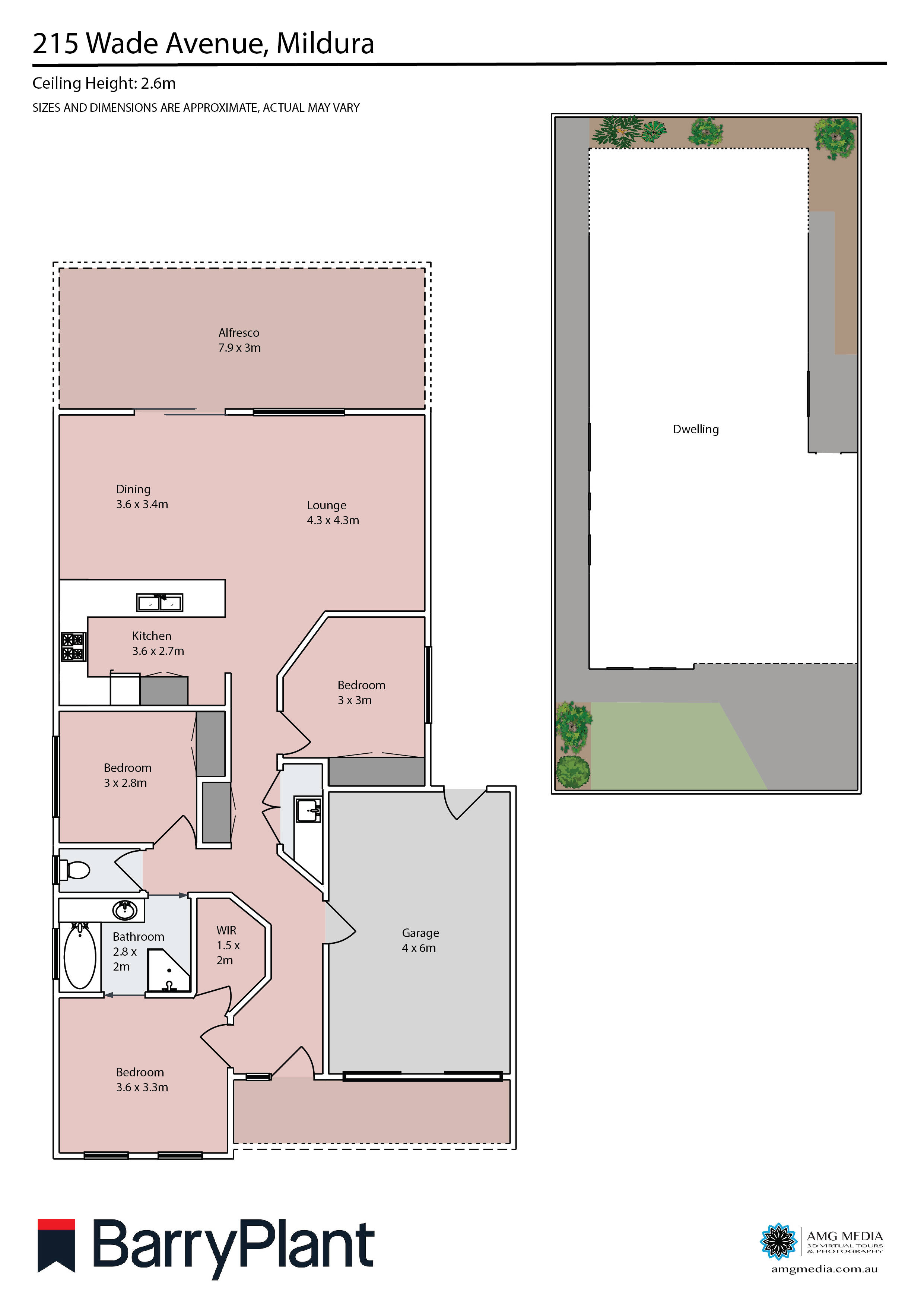
215 Wade Avenue
Mildura vic 3500
Townhouse
3
1
1
270 m2 (approx)
Available Now
$450.00 per week
Office Contact
Barry Plant Mildura
03 5021 4600Neat, centrally located townhouse.
Property Features
- Built-in Robes
- Dishwasher
- Reverse Cycle Air Conditioning
- toilets
- Gas Cooking
- Outdoor Entertaining
