Chat with us, powered by LiveChat
13

sold

House
1 Blackwood Court, Nunawading, VIC 3131 - Thumbnail 1 - 19/05/2019
1 Blackwood Court, Nunawading, VIC 3131 - Thumbnail 2 - 19/05/2019+ 10

1 Blackwood Court
Nunawading VIC 3131

House

5
3
1
986 (approx)
$1,530,000Sat 9th September 2017
$1,530,000

Office Contact

Barry Plant Whitehorse

03 9874 3355

AUCTION THIS SATURDAY AT 2PM - 986sqm (approx.) with approved planning permit for 3 Townhouses

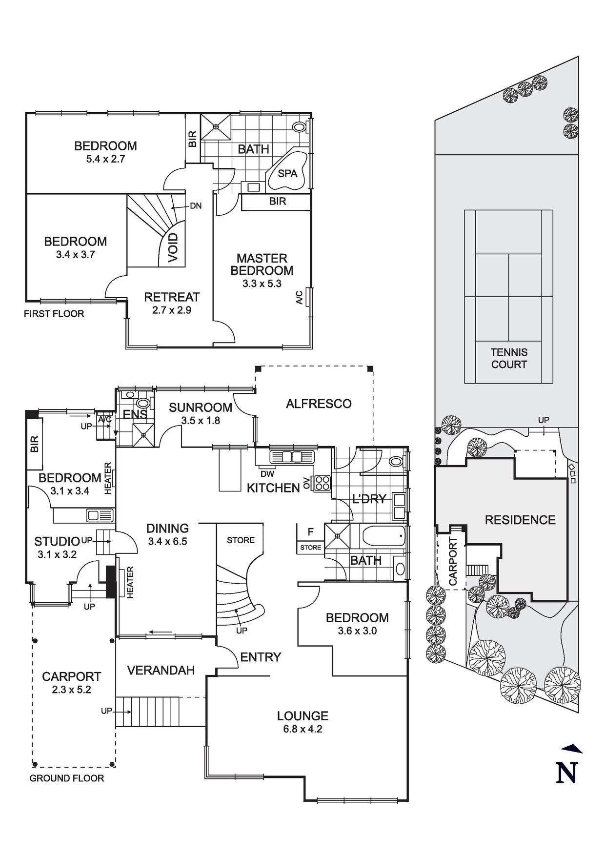
A champion of space and beacon of opportunity on an incredible 986sqm (approx.) allotment with a planning permit for three townhouses, this stately five-bedroom, three-bathroom residence offers no shortage of options for all categories of buyers.

Soaring across two levels with its collection of multiple living areas catering for both formal and communal living, modern kitchen with waterfall stone benchtops and a 900mm freestanding stainless steel cooker and polished timber floors, it's certainly a home your large family can comfortably grow into. And with self-contained quarters comprising a generous bedroom with built-in robes and adjacent studio with kitchenette and separate entry, there's even enough space for the in-laws or scope to lease out the space and line your pockets with income!

Restore the full-size tennis court to its former glory, or extract maximum value from this prized block with approved planning permit to build three luxury Townhouses in a first-class location moments to excellent schools, numerous parks, Nunawading's famed 'Golden Mile' shopping precinct, Mitcham Shopping Centre, Nunawading train station and Eastlink.

The approved plans detail the following specifications:

Townhouse 1 - 208.20m2 or 22.4sqs approx. (double garage).
3 bedrooms and 2 bathrooms and 3 toilets with balcony

Townhouse 2 - 201.20m2 or 21.7sqs approx. (double garage).
3 bedrooms and 2 bathrooms and 3 toilets with balcony

Townhouse 3 - 255.60m2 or 27.5sqs approx. (double garage).
4 bedrooms and 3 bathrooms and 4 toilets with balcony
Property Features
  • Garages

Office Contact

Barry Plant Whitehorse

03 9874 3355

Nunawading
VIC 3131

Number of Residents
12,413
Median Sale Price
$1,039,200
Median Rental Price
$676p/w
Powered by Proptrack

Visit the Nunawading Suburb Profile for detailed market insights and area information.