Chat with us, powered by LiveChat
12

sold

House
10 Ronald Street, Coburg North, VIC 3058 - Thumbnail 1 - 04/08/2021
10 Ronald Street, Coburg North, VIC 3058 - Thumbnail 2 - 04/08/2021+ 9

10 Ronald Street
Coburg North VIC 3058

House

4
2
2
$950,500Sat 2nd October 2021
$950,500

Agent

Jarrod Couch

0413 744 301

Office Contact

Barry Plant Coburg

03 9350 1155

Contemporary Class and Comfort

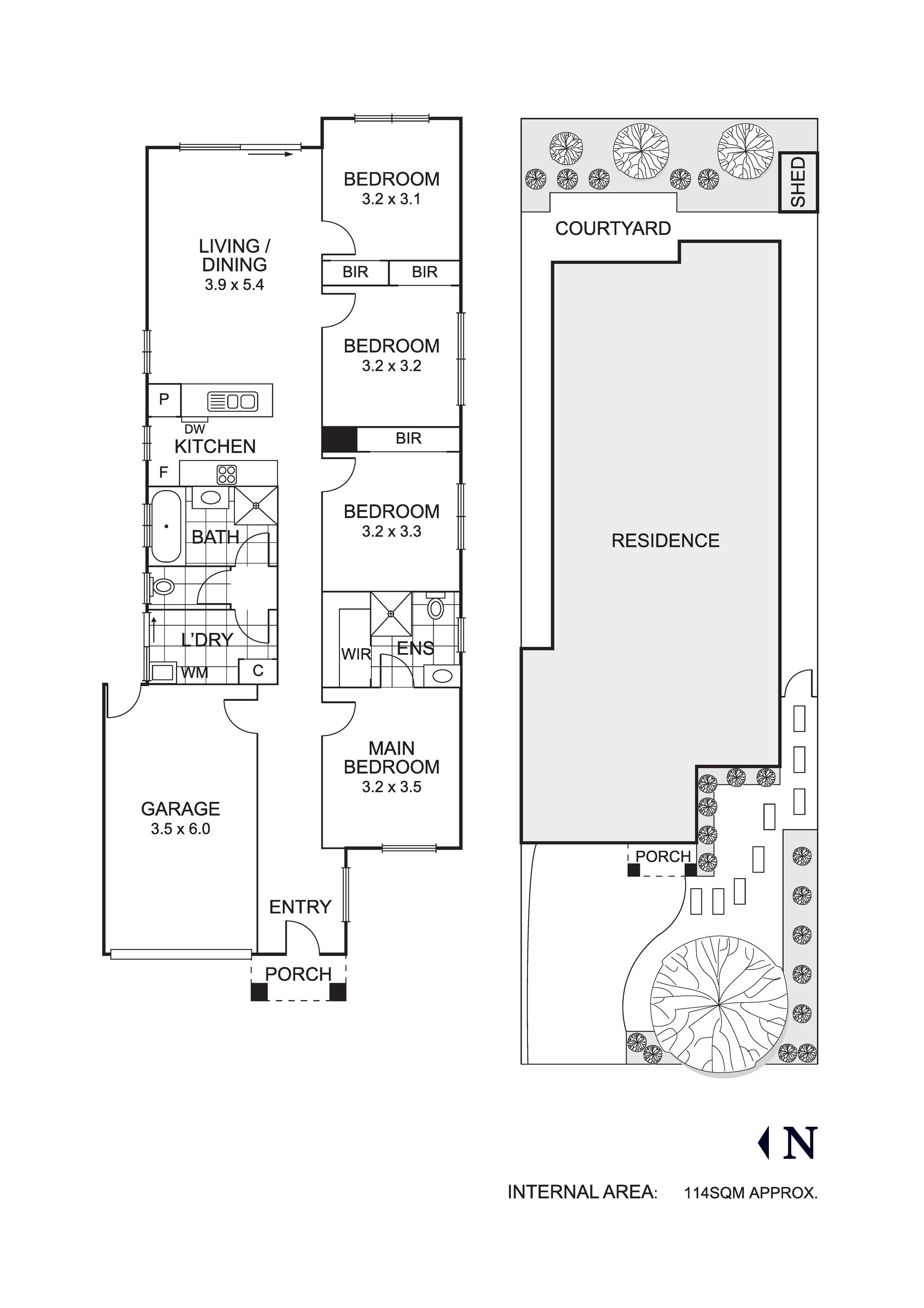
This immaculate four-bedroom, two-bathroom residence offers those a haven for tranquil living whilst being conveniently located close to parks, schools, shopping and public transport. Showcasing a light filled open plan living & dining area along with a stylish contemporary kitchen featuring stainless steel appliances, stone benchtops, dishwasher & pantry. The master bedroom features an ensuite and walk in robe while the contemporary family bathroom services the remaining bedrooms. Designed for easy living with ample storage and ducted heating/evaporative cooling providing year-round comfort. It also has quality flooring, laundry, separate toilet, water tank, garden shed, remote lockup garage with internal access and a low maintenance garden, completing this smart package.

IMPORTANT NOTICE REGARDING COVID- 19:

Visit: www.barryplant.com.au/media-hub/resources for the Information

We can provide alternatives to meeting in person and for inspections, please contact us to find out what options are available to you.

Agent

Jarrod Couch

0413 744 301

Office Contact

Barry Plant Coburg

03 9350 1155

Coburg North
VIC 3058

Number of Residents
8,327
Median Sale Price
$950,500
Median Rental Price
$636p/w
Powered by Proptrack

Visit the Coburg North Suburb Profile for detailed market insights and area information.