37
soldHouse

109A Quarry Road
Spring Farm SA 5453
House
4
5
5
51060 (approx)
$1,200,000Wed 19th August 2020
$1,200,000
Thorn Park by the Vines: where more than just a modern take on the homestead meets the world class cellar doors of the Clare Valley...
Here are the sum of its parts, adding up to what could be a business, your home...or both. And it's a beautiful thing, inside and out.
Hidden from the passing world in a setting that's captured hearts the world over, Thorn Park by the Vines is a contemporary, tech-savvy salute to the country homesteads of a time gone by where some 12 enchanting acres meet the rolling vineyards of surrounding Sevenhill.
A quick Google search of "Thorn Park by the Vines' tells a story of 100 five-star reviews for what has been as much an acclaimed, world-class holiday retreat as it is simply one very impressive home - with a separate self-contained studio apartment for good measure.
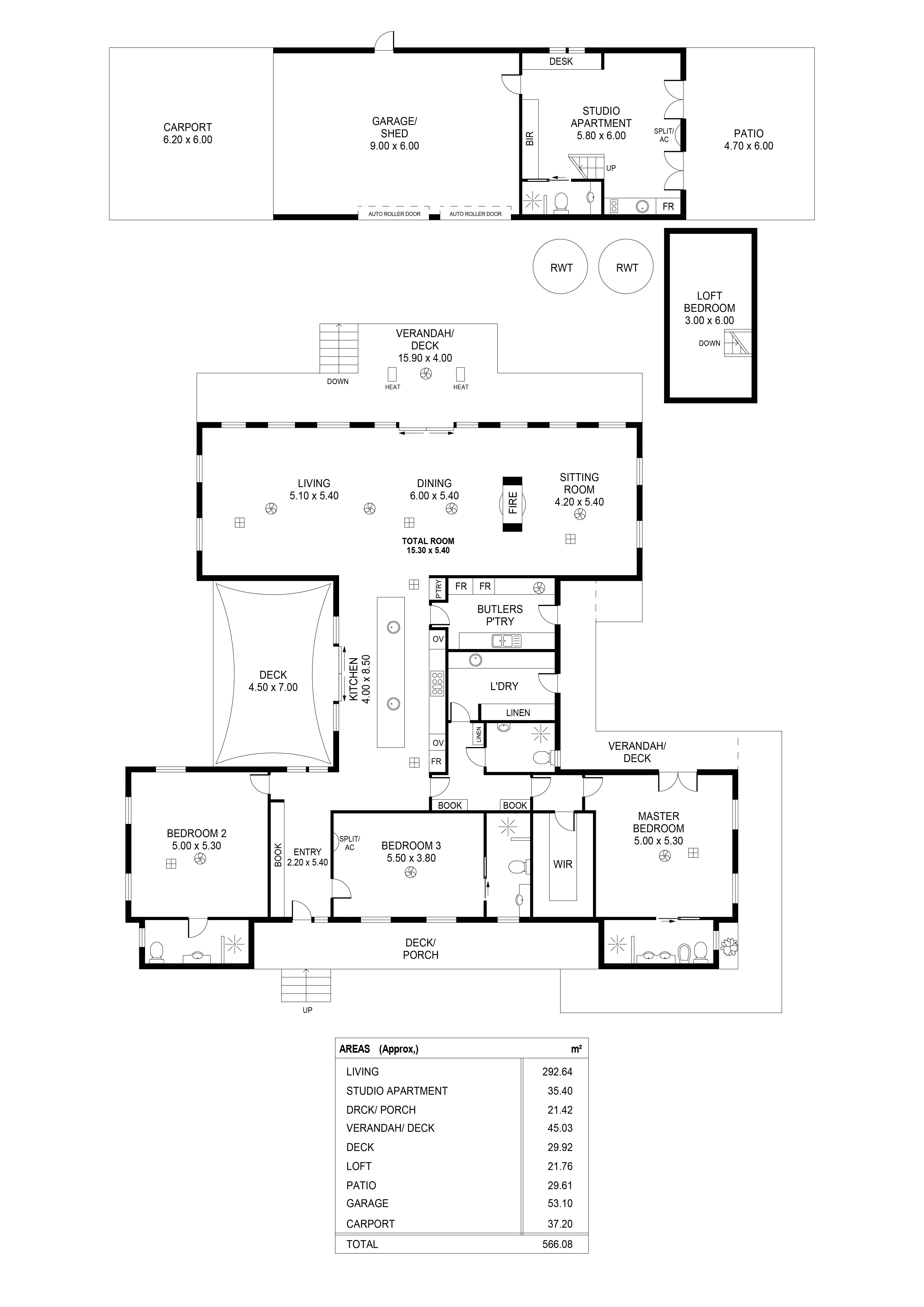
A classic silhouette of steeply pitched gables and custom orb cladding combine to conjure striking contrast with the towering trees and billabong that stand before a 2008-built home with an inspired H-shaped floorplan.
It's a footprint that affords privacy and solitude with the same sense of purpose as it does draw everyone to the inspired galley kitchen and west-facing deck at its light-filled heart.
Headlined by European appliances at every turn, butler's pantry, and a seemingly endless (5.5m) stone-topped island, the crowd can gather, graze and watch the chef get to work in what is one of the most impressive kitchens we've seen in some time.
The kitchen feeds an expansive north-facing living zone with lofty vaulted ceilings, enough space to host 'The Last Supper' and a two-way fireplace that gives the sitting room subtle separation.
In summer, the adjacent north-facing alfresco deck/pavilion will dish up an elevated perspective of your Alison Aplin designed gardens to go with dinner and a few drinks.
Retire to one of three bedroom suites, each with a private bathroom and their own unique outlook. On account of its custom walk-in robe with room for 50 pairs of Jimmy Choo, you'll likely claim what was affectionately coined the "Mocha Room".
Rivalling the main home in looks and scale is a 21m x 6m steel framed shed with double garage and workshop for your big toys, tools and tinkering.
Just when you think Thorn Park by the Vines can't get any better, along comes the AirBnB-ready, self-contained studio apartment with sleek kitchenette, French doors to a private terrace, under-floor heating, bathroom, and a mezzanine style bedroom.
The sum of its parts adds up to what could be a business, your home...or both. And it's a beautiful thing, inside and out.
THE LOCATION
Located on the edges of Sevenhill in the Clare Valley, Thorn Park takes up proud place in one of Australia's most revered wine growing regions, just a 2-hour drive from Adelaide. What feels a world away from any civilisation is rather just a 10-minute drive from the heart of Clare and moments from the likes of Mitchell Wines and Skillogalee Winery and Vineyard.
THE HIGHLIGHTS
Homestead
- Built of strong steel to stand the test of time and Australia's harsh seasons
- Underfloor heating to all living areas
- Evaporative ducted R/C, split or wall-mounted R/C to all bedrooms
- Main kitchen boasts a mix of Bosch and Miele appliances, including 2x multi-function ovens, steam oven, convection microwave, inbuilt coffee machine, warming drawers, induction and gas cooktops, Vintec wine fridges and more
- Double sink, dishwasher, gas cooktop and storage to butler's pantry
- Double sided French slow combustion feature fire to open-plan living
- Imported porcelain tile floors
- Integrated A-bus sound system to kitchen, plus speakers to both decks
- Lofty ceilings with acoustic shield sound proofing
- Fans and radiant heaters to alfresco deck/pavilion
- Large separate laundry with Bosch appliances
Shed
- Concrete flooring, 3-phase power, automatic roller doors, insulation and custom orb cladding to steel-framed shed
- Double carport
Studio apartment
- A spacious 36sqm of living space to lower level
- Underfloor heating, double insulation, porcelain floors, acoustic shield ceilings and inbuilt speakers
- Crisp bathroom with vanity, toilet, walk-in shower and underfloor heating
- Wall-to-floor wardrobes and built-in double desk
- Miele appliances, stone benchtops and dishwasher to kitchenette
- Australian oak inbuilt ladder to mezzanine bedroom
Gardens
- Professionally designed, bore-fed grounds are both water wise and low in maintenance
- Extensive native and European plantings, drawing an array of bird life to your doorstep
- Efficient 9-station watering system
- Raised vegetable gardens
- Large (69m) bore with 600ppm salinity, pump with 3-phase power
- Total of 83,500L of rainwater storage
THE PRAISE
"A secret oasis of character, class & contemplation"
Jan & Alister, Apollo Bay
"This house is a treasure of peace and harmony"
Lesley, London
"The location is superb, where else in the world could you dine and watch kangaroos boxing"
Rosmund & Richard, Canada
"Such a haven for those who seek great comfort & style"
Neil & Trish, Sydney
"There are many beautiful places to stay all over Australia, this place, nestled on a gentle slope, adjoining its own "billabong" is one of the finest"
Deidre & John, Perth WA
Land Size: 51060.0m2
Built: 2009
C/T: 5963/524
LGA: Clare & Gilbert Valleys
*Please note that as COVID-19 (Coronavirus) has now been declared a pandemic by the World Health Organisation, we ask that you please respect the safety of our vendor's properties and our properties for sale where tenants are living during open inspections.
We ask that you only enter the home if you are not exhibiting any symptoms, such as fever or cough. Please do not touch anything in the home, and please avoid touching door handles and taps.
For the latest advice please go to www.health.gov.au
Hidden from the passing world in a setting that's captured hearts the world over, Thorn Park by the Vines is a contemporary, tech-savvy salute to the country homesteads of a time gone by where some 12 enchanting acres meet the rolling vineyards of surrounding Sevenhill.
A quick Google search of "Thorn Park by the Vines' tells a story of 100 five-star reviews for what has been as much an acclaimed, world-class holiday retreat as it is simply one very impressive home - with a separate self-contained studio apartment for good measure.
A classic silhouette of steeply pitched gables and custom orb cladding combine to conjure striking contrast with the towering trees and billabong that stand before a 2008-built home with an inspired H-shaped floorplan.
It's a footprint that affords privacy and solitude with the same sense of purpose as it does draw everyone to the inspired galley kitchen and west-facing deck at its light-filled heart.
Headlined by European appliances at every turn, butler's pantry, and a seemingly endless (5.5m) stone-topped island, the crowd can gather, graze and watch the chef get to work in what is one of the most impressive kitchens we've seen in some time.
The kitchen feeds an expansive north-facing living zone with lofty vaulted ceilings, enough space to host 'The Last Supper' and a two-way fireplace that gives the sitting room subtle separation.
In summer, the adjacent north-facing alfresco deck/pavilion will dish up an elevated perspective of your Alison Aplin designed gardens to go with dinner and a few drinks.
Retire to one of three bedroom suites, each with a private bathroom and their own unique outlook. On account of its custom walk-in robe with room for 50 pairs of Jimmy Choo, you'll likely claim what was affectionately coined the "Mocha Room".
Rivalling the main home in looks and scale is a 21m x 6m steel framed shed with double garage and workshop for your big toys, tools and tinkering.
Just when you think Thorn Park by the Vines can't get any better, along comes the AirBnB-ready, self-contained studio apartment with sleek kitchenette, French doors to a private terrace, under-floor heating, bathroom, and a mezzanine style bedroom.
The sum of its parts adds up to what could be a business, your home...or both. And it's a beautiful thing, inside and out.
THE LOCATION
Located on the edges of Sevenhill in the Clare Valley, Thorn Park takes up proud place in one of Australia's most revered wine growing regions, just a 2-hour drive from Adelaide. What feels a world away from any civilisation is rather just a 10-minute drive from the heart of Clare and moments from the likes of Mitchell Wines and Skillogalee Winery and Vineyard.
THE HIGHLIGHTS
Homestead
- Built of strong steel to stand the test of time and Australia's harsh seasons
- Underfloor heating to all living areas
- Evaporative ducted R/C, split or wall-mounted R/C to all bedrooms
- Main kitchen boasts a mix of Bosch and Miele appliances, including 2x multi-function ovens, steam oven, convection microwave, inbuilt coffee machine, warming drawers, induction and gas cooktops, Vintec wine fridges and more
- Double sink, dishwasher, gas cooktop and storage to butler's pantry
- Double sided French slow combustion feature fire to open-plan living
- Imported porcelain tile floors
- Integrated A-bus sound system to kitchen, plus speakers to both decks
- Lofty ceilings with acoustic shield sound proofing
- Fans and radiant heaters to alfresco deck/pavilion
- Large separate laundry with Bosch appliances
Shed
- Concrete flooring, 3-phase power, automatic roller doors, insulation and custom orb cladding to steel-framed shed
- Double carport
Studio apartment
- A spacious 36sqm of living space to lower level
- Underfloor heating, double insulation, porcelain floors, acoustic shield ceilings and inbuilt speakers
- Crisp bathroom with vanity, toilet, walk-in shower and underfloor heating
- Wall-to-floor wardrobes and built-in double desk
- Miele appliances, stone benchtops and dishwasher to kitchenette
- Australian oak inbuilt ladder to mezzanine bedroom
Gardens
- Professionally designed, bore-fed grounds are both water wise and low in maintenance
- Extensive native and European plantings, drawing an array of bird life to your doorstep
- Efficient 9-station watering system
- Raised vegetable gardens
- Large (69m) bore with 600ppm salinity, pump with 3-phase power
- Total of 83,500L of rainwater storage
THE PRAISE
"A secret oasis of character, class & contemplation"
Jan & Alister, Apollo Bay
"This house is a treasure of peace and harmony"
Lesley, London
"The location is superb, where else in the world could you dine and watch kangaroos boxing"
Rosmund & Richard, Canada
"Such a haven for those who seek great comfort & style"
Neil & Trish, Sydney
"There are many beautiful places to stay all over Australia, this place, nestled on a gentle slope, adjoining its own "billabong" is one of the finest"
Deidre & John, Perth WA
Land Size: 51060.0m2
Built: 2009
C/T: 5963/524
LGA: Clare & Gilbert Valleys
*Please note that as COVID-19 (Coronavirus) has now been declared a pandemic by the World Health Organisation, we ask that you please respect the safety of our vendor's properties and our properties for sale where tenants are living during open inspections.
We ask that you only enter the home if you are not exhibiting any symptoms, such as fever or cough. Please do not touch anything in the home, and please avoid touching door handles and taps.
For the latest advice please go to www.health.gov.au