11
soldTownhouse

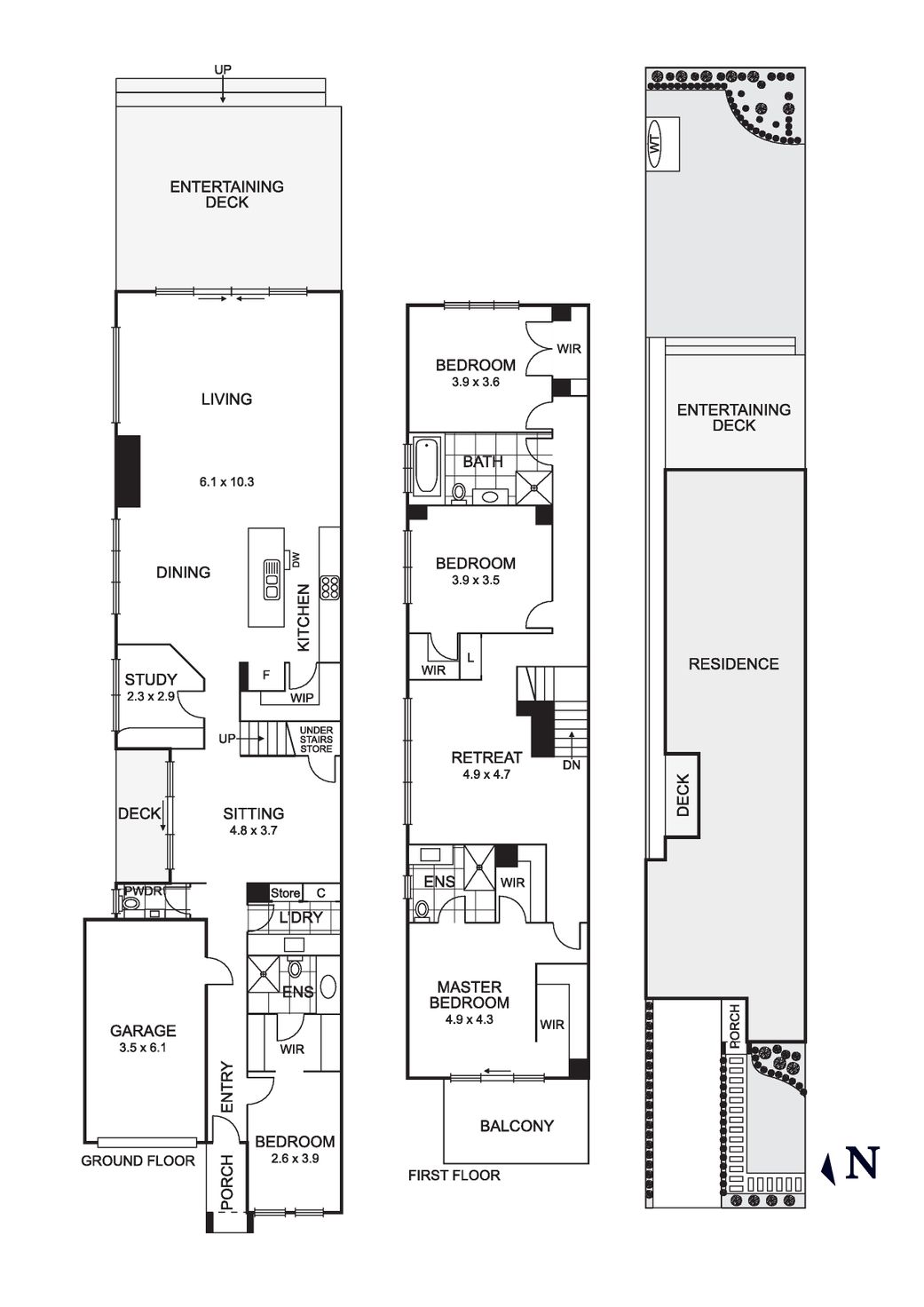
14a Bowes Avenue
Airport West VIC 3042
Townhouse
4
3
1
390 (approx)
$1,232,500Sat 21st April 2018
$1,232,500
Agent
Bill Karp
0418 310 863Tony Catena
0418 687 716Office Contact
Barry Plant Essendon
03 9373 0000Simply Sublime
Property Features
- Ensuite
- Garages
- Remote Garage
- Built-In Robes
- Dishwasher
- Ducted Heating
- Evaporative Cooling
- Floorboards
- Study
Agent
Bill Karp
0418 310 863Tony Catena
0418 687 716Office Contact
