Chat with us, powered by LiveChat
11

sold

Townhouse
2/36 Kulnine Avenue, Mitcham, VIC 3132 - Thumbnail 1 - 07/04/2026
2/36 Kulnine Avenue, Mitcham, VIC 3132 - Thumbnail 2 - 07/04/2026+ 8

2/36 Kulnine Avenue
Mitcham vic 3132

Townhouse

2
1
1
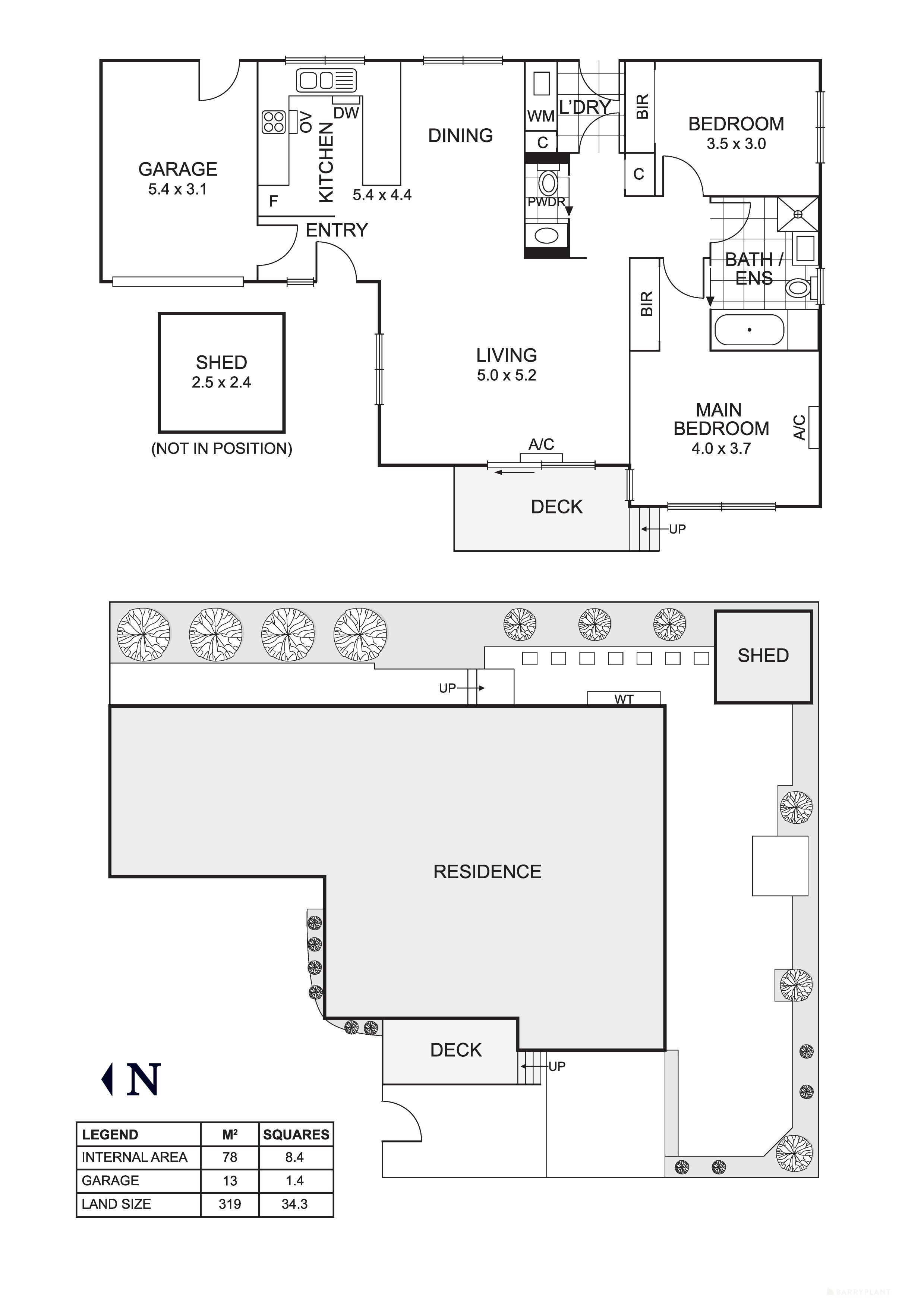
319 m2 (approx)
$810,000Wed 29th April 2026
$810,000

Agent

Robert Groeneveld

0404 881 634

Chloe McLindin

0439 948 005

Office Contact

Barry Plant Whitehorse

03 9874 3355

Easy-Care Haven in Prized Locale


Sale by SET DATE® Closing Monday, 4th May at 5:00pm.

Snap up your very own easy-care slice of beautiful Mitcham with this single-level 2-bedroom villa, just moments from parks, schools, transport and more for the best in daily living.
Impeccably presented and ready to move into or rent out, the inviting home comprises a welcoming lounge, a relaxed dining area and stylishly appointed kitchen where a stainless steel dishwasher, gas cooktop and glossy black benchtops are highlights.
Built-in wardrobes feature in both of the carpeted bedrooms. They share a chic central bathroom with both a shower and bath while a full laundry and separate powder room are also offered.
Providing plenty of space to unwind or entertain guests, the rear courtyard impresses with an alfresco deck, sunny paved area and verdant lawn & landscaping. Completing this truly appealing package are gas ducted heating, split system cooling, a garden shed, alarm system, along with a garage with handy house access.
Near Heatherdale Reserve for endless & effortless leisure time enjoyment, the home is also close to the station, local shops, Rangeview Primary School and bus stops. Eastland, the zoned Vermont Secondary College, Aquanation and Eastlink are also within easy reach.
Property Features
  • Toilets: 2

Agent

Robert Groeneveld

0404 881 634

Chloe McLindin

0439 948 005

Office Contact

Barry Plant Whitehorse

03 9874 3355

Mitcham
vic 3132

Number of Residents
16,795
Median Sale Price
$1,100,000
Median Rental Price
$669p/w
Powered by Proptrack

Visit the Mitcham Suburb Profile for detailed market insights and area information.