Chat with us, powered by LiveChat
16

sold

Townhouse
2/55 Cassowary Street, Doncaster East, VIC 3109 - Thumbnail 1 - 27/11/2025
2/55 Cassowary Street, Doncaster East, VIC 3109 - Thumbnail 2 - 27/11/2025+ 13

2/55 Cassowary Street
Doncaster East vic 3109

Townhouse

3
1
2
$920,000Sat 13th December 2025
$920,000

Agent

Scott George

0410 753 549

Tina Maier

0451 767 668

Office Contact

Barry Plant Manningham

03 9842 8888

SOLD! Best results in Manningham | Barry Plant Manningham’s #1 Real Estate Agency* | 9842 8888


Our latest sale attracted strong interest, and we have buyers who missed out. Let’s introduce them to your property and secure another great result.

Thinking of selling? Let’s make your property our next success story!
*Rate My Agent suburb winner in most Manningham suburbs – No.1 Most Recommended.

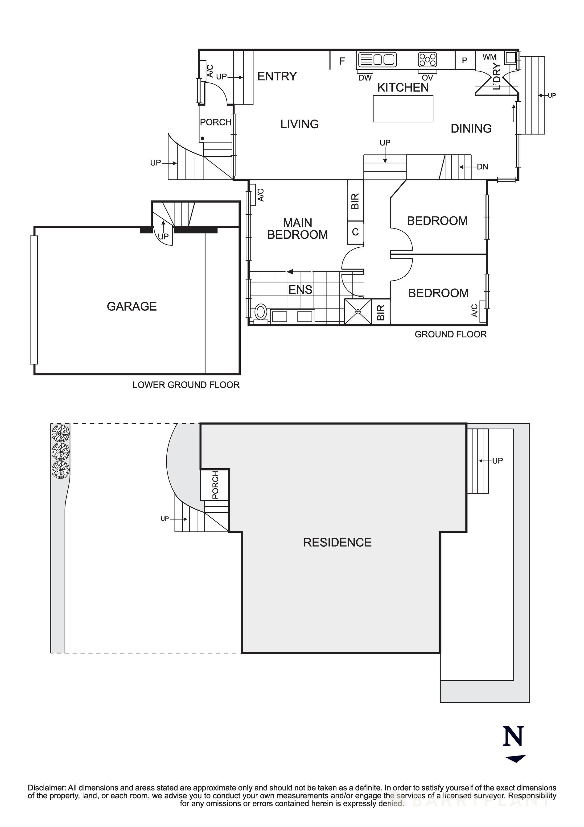
Renovated to reflect a modern lifestyle, this stunning split-level design offers nothing but style and satisfaction in the coveted East Doncaster Secondary School zone.

Part of a beautiful boutique complex you’re welcomed in by an elevated entrance that opens up to reveal quality timber floors which flow throughout a warming open plan living, dining and contemporary kitchen precinct.

Surrounded by plenty of room to entertain, the 5-star kitchen really forms the centerpiece of this light-filled layout, boasting stone benches, an Island bench with breakfast bar, stainless steel appliances and an abundance of soft-close storage.

Elevated for separation but close for convenience, accommodation includes three generous bedrooms with robes that enjoy proximity to a 5-star bathroom with twin vanity, walk-in shower and sleek floor-to-ceiling tiles.

Low-maintenance yet offering room for outdoor entertaining and plenty of privacy, the secure courtyard is a valued addition, while the remote double garage provides convenient internal access to the home.

A matching separate laundry and split-system reverse-cycle heating/air-conditioning provides comfort throughout a sensational real estate asset that positions itself among some of the area’s best schools.

Within walking distance to Beverley Hills Primary School, East Doncaster Secondary College, the Tunstall Square Shopping Village, Devon Plaza and the Jackson Court Shopping Centre, close to Ruffey Lake Park and Westfield Doncaster Shoppingtown, with easy access to Blackburn Rd, Springvale Rd, Doncaster Rd, Manningham Rd and the Eastern Freeway.

Agent

Scott George

0410 753 549

Tina Maier

0451 767 668

Office Contact

Barry Plant Manningham

03 9842 8888

Doncaster East
vic 3109

Number of Residents
30,926
Median Sale Price
$1,390,000
Median Rental Price
$769p/w
Powered by Proptrack

Visit the Doncaster East Suburb Profile for detailed market insights and area information.