Chat with us, powered by LiveChat
27

sold

House
2 Tikalara Place, Templestowe, VIC 3106 - Thumbnail 1 - 08/08/2025
2 Tikalara Place, Templestowe, VIC 3106 - Thumbnail 2 - 08/08/2025+ 23

2 Tikalara Place
Templestowe vic 3106

House

5
3
2
Thu 9th October 2025

Agent

Diana Dai

0408 050 157

Todd Lucas

0401 941 210

Office Contact

Barry Plant Manningham

03 9842 8888

SOLD! Best results in Manningham – Barry Plant Manningham’s #1 Real Estate Agency* | 9842 8888


Our latest sale attracted strong interest, and we have buyers who missed out. Let’s introduce them to your property and secure another great result.

Thinking of selling? Let’s make your property our next success story!
*Rate My Agent suburb winner in most Manningham suburbs – No.1 Most Recommended

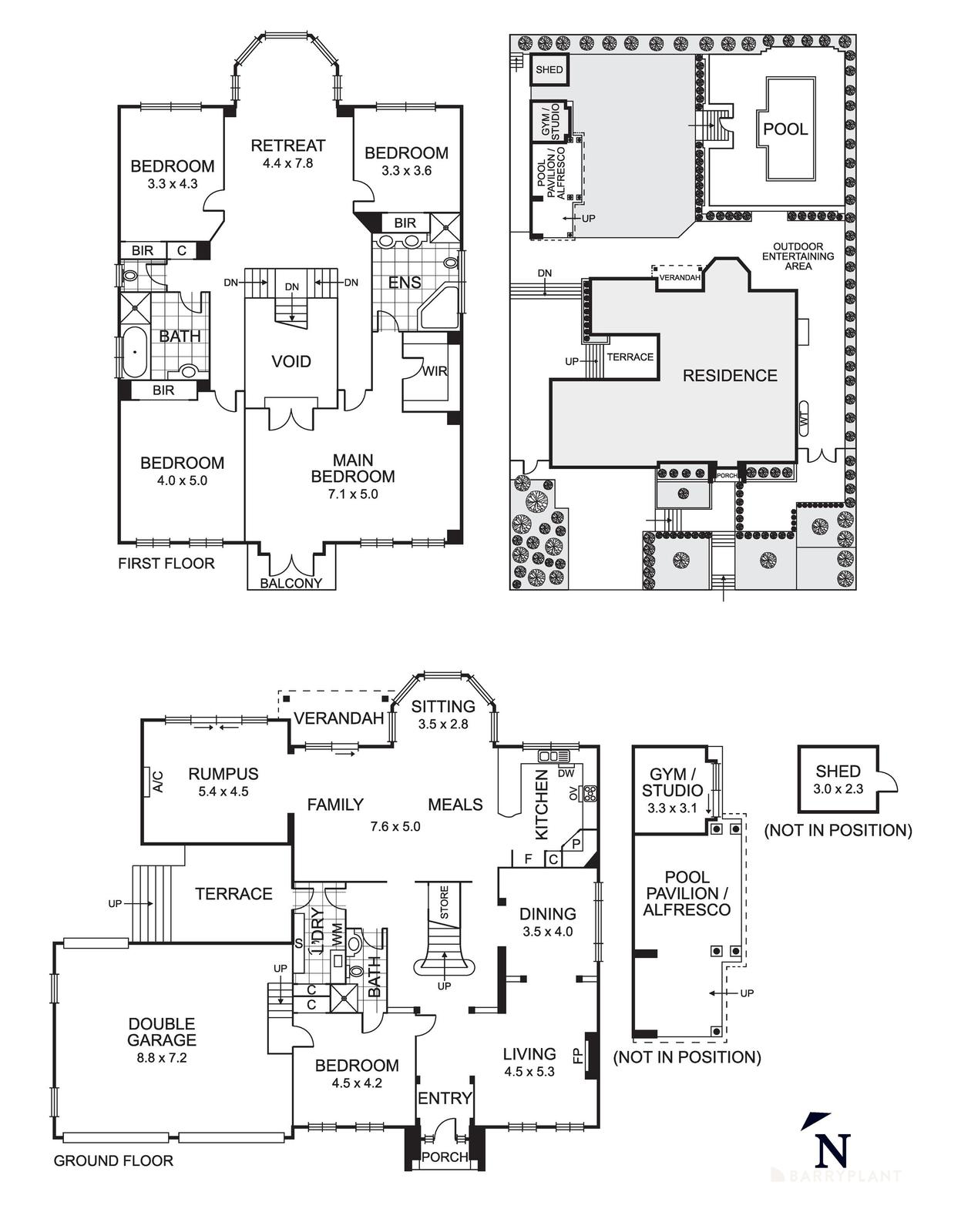
Step into luxury living in this exquisite European-inspired residence, tailored for anyone seeking all round elegance and comfort. Nestled in the prestigious Estate, this home offers an array of entertainment options and family-friendly spaces, complemented by a solar-heated inground pool and a charming pavilion.
Approaching the property, you're greeted by meticulously landscaped formal gardens, complete with a central staircase and a tranquil water fountain, creating a grand entrance. Inside, polished tiles shine underneath the exquisite chandelier, guiding you through the home's elegant interior.
The ground floor features a guest bedroom with an adjoining bathroom and direct access to an oversized double garage equipped with a rear roller door for added convenience. Formal lounge and dining areas exude opulence with luxurious drapes, plush carpeting, sparkling chandeliers and a cozy fireplace, perfect for hosting gatherings with family and friends.
A beautifully sunlit family/meals area, framed by a large bay window, offers a welcoming space for everyday relaxation, while a separate rumpus room provides additional flexibility for leisure activities. The gourmet kitchen showcases solid granite countertops and equipped with a premium 900mm Miele oven/cooktop.
Walking up the grand split staircase leads to a spacious living retreat, internal Juliet balcony, large tiled main bathroom with a bathtub, four generously sized bedrooms, including a master suite which boasts a private retreat area, an oversized spa ensuite with dual vanity, a frameless shower, a fitted walk-in robe, and access to a terrace overlooking the estate.
Additional highlights include a well-appointed laundry with external access, ducted heating, cooling, and a vacuum system, a security alarm, a water tank, convenient poolside gym/studio, a garden shed, and fully secured dual side gate access.
Set in a peaceful location surrounded by serene parklands, cycling trails, and wetlands, and conveniently close to The Pines Shopping Centre, public transport, schools, and freeway access, this home seamlessly combines luxurious living with practical amenities and a picturesque setting, promising an unparalleled lifestyle for its fortunate residents.
Property Video
Property Features
  • Built-in Robes
  • Gym
  • Open Fire Place
  • Inground Pool
  • Rumpus Room
  • Remote Garage
  • Water Tank
Read more

Agent

Diana Dai

0408 050 157

Todd Lucas

0401 941 210

Office Contact

Barry Plant Manningham

03 9842 8888

Templestowe
vic 3106

Number of Residents
16,966
Median Sale Price
$1,490,000
Median Rental Price
$928p/w
Powered by Proptrack

Visit the Templestowe Suburb Profile for detailed market insights and area information.