Chat with us, powered by LiveChat
16

sold

House
21a Caroline Street, Aberfeldie, VIC 3040 - Thumbnail 1 - 10/08/2022
21a Caroline Street, Aberfeldie, VIC 3040 - Thumbnail 2 - 10/08/2022+ 11

21a Caroline Street
Aberfeldie VIC 3040

House

4
3
2
$2,930,000Thu 15th September 2022
$2,930,000

Agent

Walter Mahch

0402 989 300

Paul Filippone

0400 155 110

Office Contact

Barry Plant Essendon

03 9373 0000

Unsurpassed luxury with a prestige Aberfeldie address

To view property video, copy link below into new browser tab.
https://youtu.be/s-AxjAzUop0

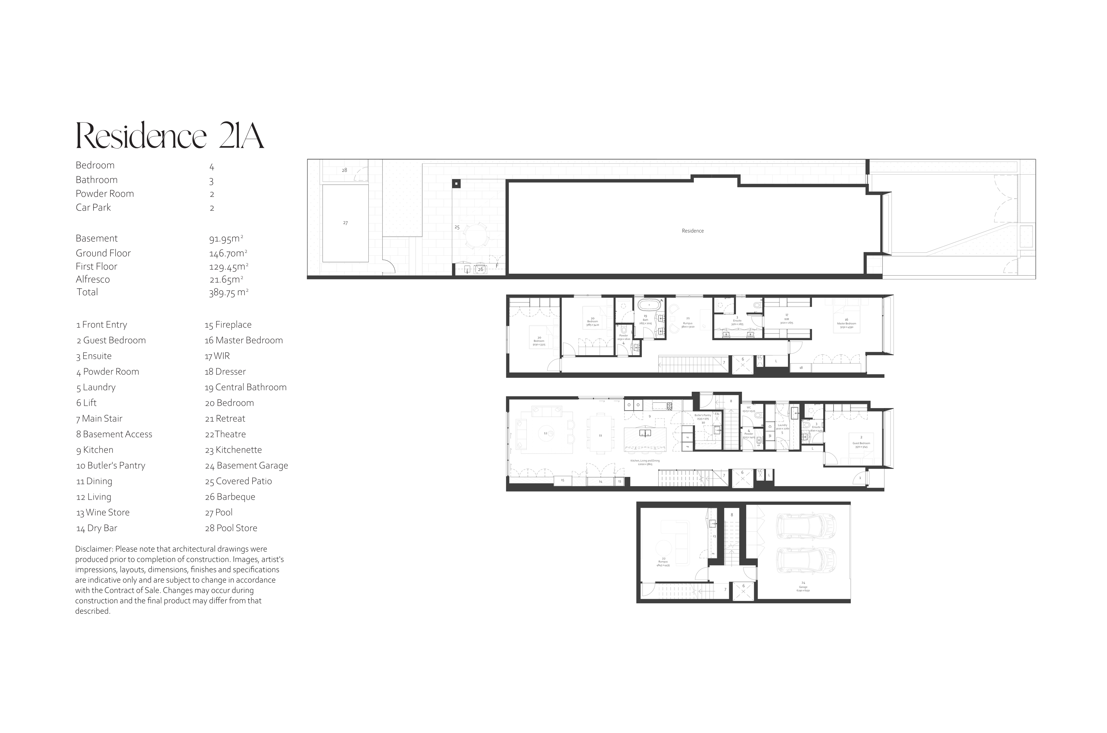
Currently under construction, due for completion in September 2023. Meticulously crafted to an elite standard where opulence, timelessness, space, and functionality are at the very forefront, this thoughtfully designed and classically inspired home is a symphony of style and luxury that will impress the most discerning of home buyers.

Sleek lines and considered materials are at the heart of this sublime architect-designed three level residence of approximately 42 squares (approx.) or similar. Sure to capture your attention from the street, the façade showcases grand full windows, artisan brickwork, and finely detailed metal framing, all the while being complemented by pristine landscaped gardens.

Outside of other creature comforts, the home also features a lift, providing ease of access across all three levels.

The generous and free-flowing living and dining zone has an air of warmth and sophistication to it, along with a dry bar to entertain friends and a tranquil gas fireplace to keep you warm in the winter months.

Cook, dine, and entertain in style in the state of the art kitchen, which is refined yet ultra-modern thanks to arresting monolithic stone, hidden butler’s pantry, and the complete range of high end Miele appliances including an integrated coffee machine, dual ovens with pyrolytic and steam features, and an integrated fridge and freezer.

The addition of a laidback living retreat adds stunning flexibility to the layout, with this space perfect to be anything from a reading room to a kids play retreat. The home theatre with kitchenette will be adored by movie lovers, with weekends the perfect time to enjoy a cinema experience with the family.

The master suite offers effortless elegance for parents to retire to at the end of a long day, with this oversized bedroom also graced with walk-in robe storage and a sumptuous ensuite complete with walk-in rain shower, double custom vanities, and natural stone detail.

Whether hosting summer dinner parties on your very own undercover BBQ terrace, or relaxing with the family on the weekends by the serene swimming pool, the alfresco will have you pining for warm weather all year round.

Aberfeldie is one of inner Melbourne’s prestige suburbs which strikes the perfect balance of peace, privacy, and ultra-convenience. Whether you’re popping down to Buckley Street for your morning pastry and latte, dropping the kids off at one of the area’s elite schools including Aberfeldie Primary School, St Bernard’s College, and Penleigh and Essendon Grammar School, or going for a lazy spring stroll along the banks of the Maribyrnong River, this charming suburb has all your bases covered.
Property Video
Property Features
  • Remote Garage
  • Alarm System
  • Intercom
  • Built-In Robes
  • Dishwasher
  • Ducted Cooling
  • Ducted Heating
  • Gas Heating
  • Rumpus Room
  • Pool (In-Ground)
Read more

Agent

Walter Mahch

0402 989 300

Paul Filippone

0400 155 110

Office Contact

Barry Plant Essendon

03 9373 0000

Aberfeldie
VIC 3040

Number of Residents
3,925
Median Sale Price
$1,482,500
Median Rental Price
$783p/w
Powered by Proptrack

Visit the Aberfeldie Suburb Profile for detailed market insights and area information.