Chat with us, powered by LiveChat
11

sold

Townhouse
2a Hardwood Court, Mitcham, VIC 3132 - Thumbnail 1 - 21/01/2026
2a Hardwood Court, Mitcham, VIC 3132 - Thumbnail 2 - 21/01/2026+ 8

2a Hardwood Court
Mitcham vic 3132

Townhouse

4
3
2
238 m2 (approx)
$1,138,000Tue 10th February 2026
$1,138,000

Agent

Joseph Tilley

0468 629 768

Todd Lucas

0401 941 210

Office Contact

Barry Plant Whitehorse

03 9874 3355

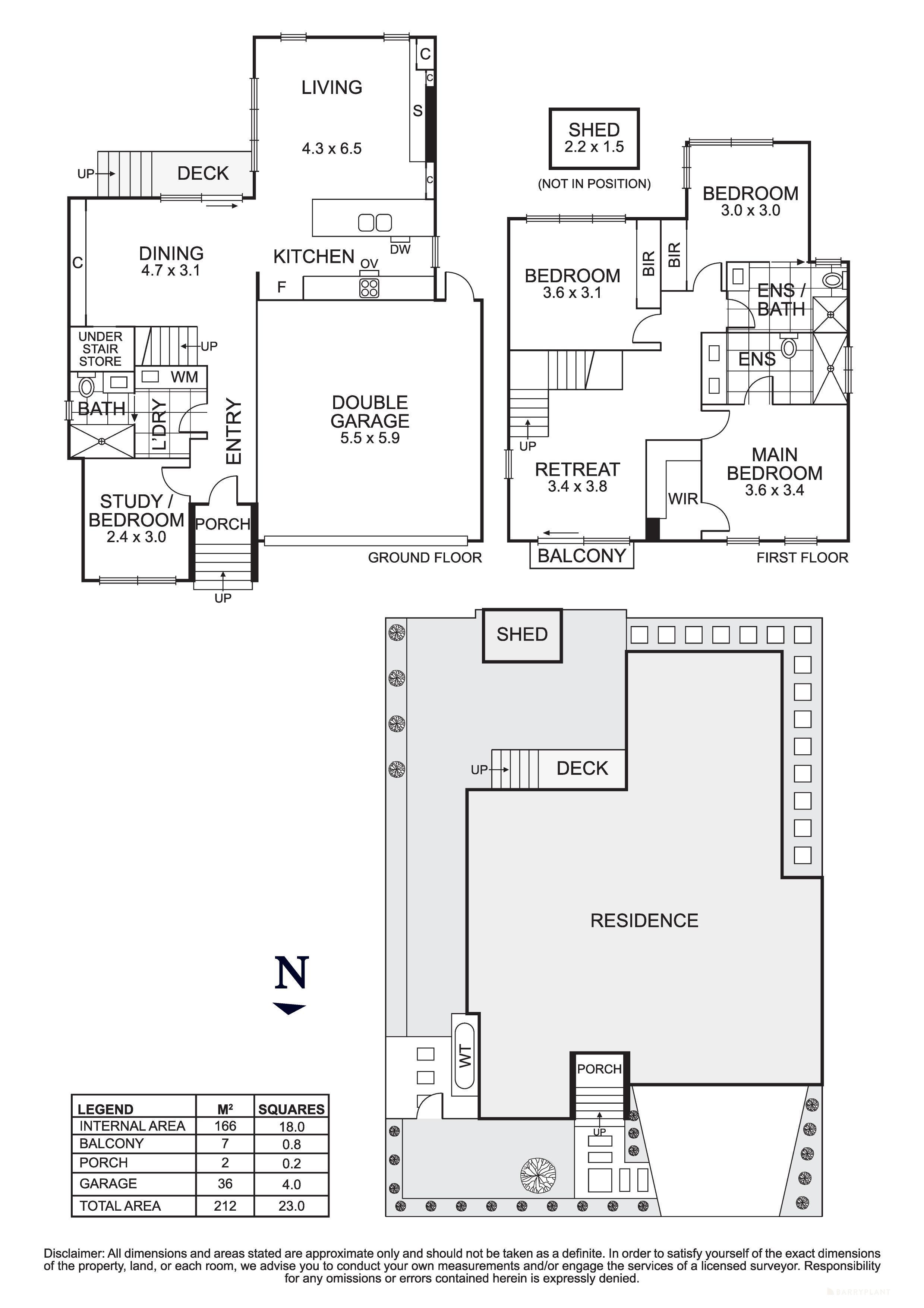
Comfortable and Flexible Living


Set within a quiet and tightly held Mitcham enclave, this beautifully proportioned four-bedroom, three-bathroom residence with a double garage delivers an exceptional standard of family living, underpinned by a thoughtfully designed and highly functional layout.

Defined by its intelligent zoning and generous proportions, the home offers multiple living domains that provide both separation and connection—ideal for modern family life. A light-filled central living and dining zone forms the heart of the home, flowing seamlessly to the outdoor area and creating an inviting environment for relaxed entertaining and everyday enjoyment.

Accommodation has been carefully considered, with four well-appointed bedrooms offering flexibility for families, guests or home office use. The main bedroom is privately positioned and enhanced by its own ensuite, while the remaining bedrooms are serviced by a central bathroom and separate amenities, ensuring comfort and practicality without compromise.

Widely regarded as a blue-chip location, Mitcham continues to be prized for its lifestyle appeal and enduring value. Enjoy the convenience of a short walk to Mitcham Primary School, Mullauna College, and the open green spaces of Halliday and Walker Parks. Mitcham Plaza, local cafés and the train station are just minutes away, while nearby arterial roads provide effortless access to surrounding suburbs and the CBD.

Agent

Joseph Tilley

0468 629 768

Todd Lucas

0401 941 210

Office Contact

Barry Plant Whitehorse

03 9874 3355

Mitcham
vic 3132

Number of Residents
16,795
Median Sale Price
$1,100,000
Median Rental Price
$669p/w
Powered by Proptrack

Visit the Mitcham Suburb Profile for detailed market insights and area information.