Chat with us, powered by LiveChat
23

sold

House
3 Albert Road, Drouin, VIC 3818 - Thumbnail 1 - 06/11/2025
3 Albert Road, Drouin, VIC 3818 - Thumbnail 2 - 06/11/2025+ 20

3 Albert Road
Drouin vic 3818

House

3
1
1
2097 m2 (approx)
$750,000Tue 25th November 2025
$750,000

Agent

Dave Reilly

0437 347 665

Matt Smith

0410 447 255

Office Contact

Barry Plant Warragul - Drouin

03 5625 3006

A Rare Half Acre Gem in the Heart of Drouin

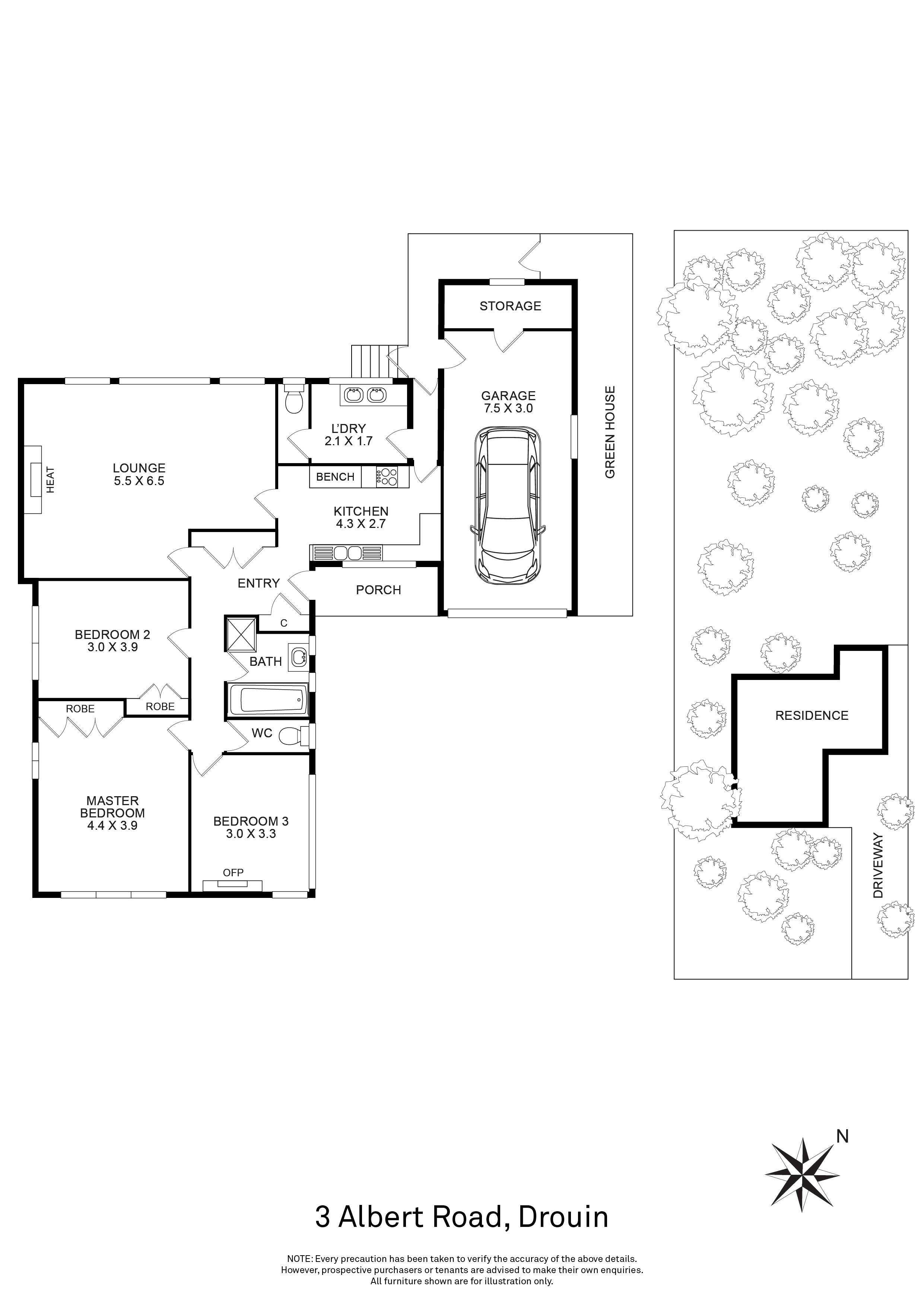
A true rarity in today's market, this cherished Drouin home is being offered for the first time since 1977. Set on an impressive half acre allotment just moments from town, 3 Albert Road combines timeless character, space and opportunity in one sought after address.

From the moment you arrive, the charm is undeniable. A beautiful stone front fence and wrought iron gates set the tone, opening to established gardens and mature trees that surround the home in greenery and privacy. Inside, the warmth of yesteryear shines through high ceilings and well kept interiors, offering a comfortable three bedroom layout. The master and second bedrooms both feature built in robes, while the central bathroom services the home with ease.

The kitchen, complete with an electric oven, gas cooktop and double sink, looks out across the leafy surrounds and connects seamlessly to the adjoining meals and living spaces. At the rear, a single garage with additional storage provides practicality, while the expansive backyard offers endless potential, whether you're dreaming of extending, landscaping or simply enjoying the space as it is.

Positioned in one of Drouin's most convenient locations, this is an unmissable opportunity to secure a piece of local history and create your own future on a generous half acre block so close to town.

PLEASE NOTE PHOTO ID IS CHECKED UPON ENTRY.
Property Features
  • Open Fire Place
  • Living Areas: 1
  • Toilets: 2
  • Close to Schools
  • Close to Shops
  • Close to Transport
Read more

Agent

Dave Reilly

0437 347 665

Matt Smith

0410 447 255

Office Contact

Barry Plant Warragul - Drouin

03 5625 3006

Drouin
vic 3818

Number of Residents
15,287
Median Sale Price
$638,500
Median Rental Price
$539p/w
Powered by Proptrack

Visit the Drouin Suburb Profile for detailed market insights and area information.