Chat with us, powered by LiveChat
11

sold

House
3 Connolly Avenue, Coburg, VIC 3058 - Thumbnail 1 - 11/03/2022
3 Connolly Avenue, Coburg, VIC 3058 - Thumbnail 2 - 11/03/2022+ 8

3 Connolly Avenue
Coburg VIC 3058

House

3
1
2
419 (approx)
$927,500Sat 9th April 2022
$927,500

Agent

Jarrod Couch

0413 744 301

Office Contact

Barry Plant Coburg

03 9350 1155

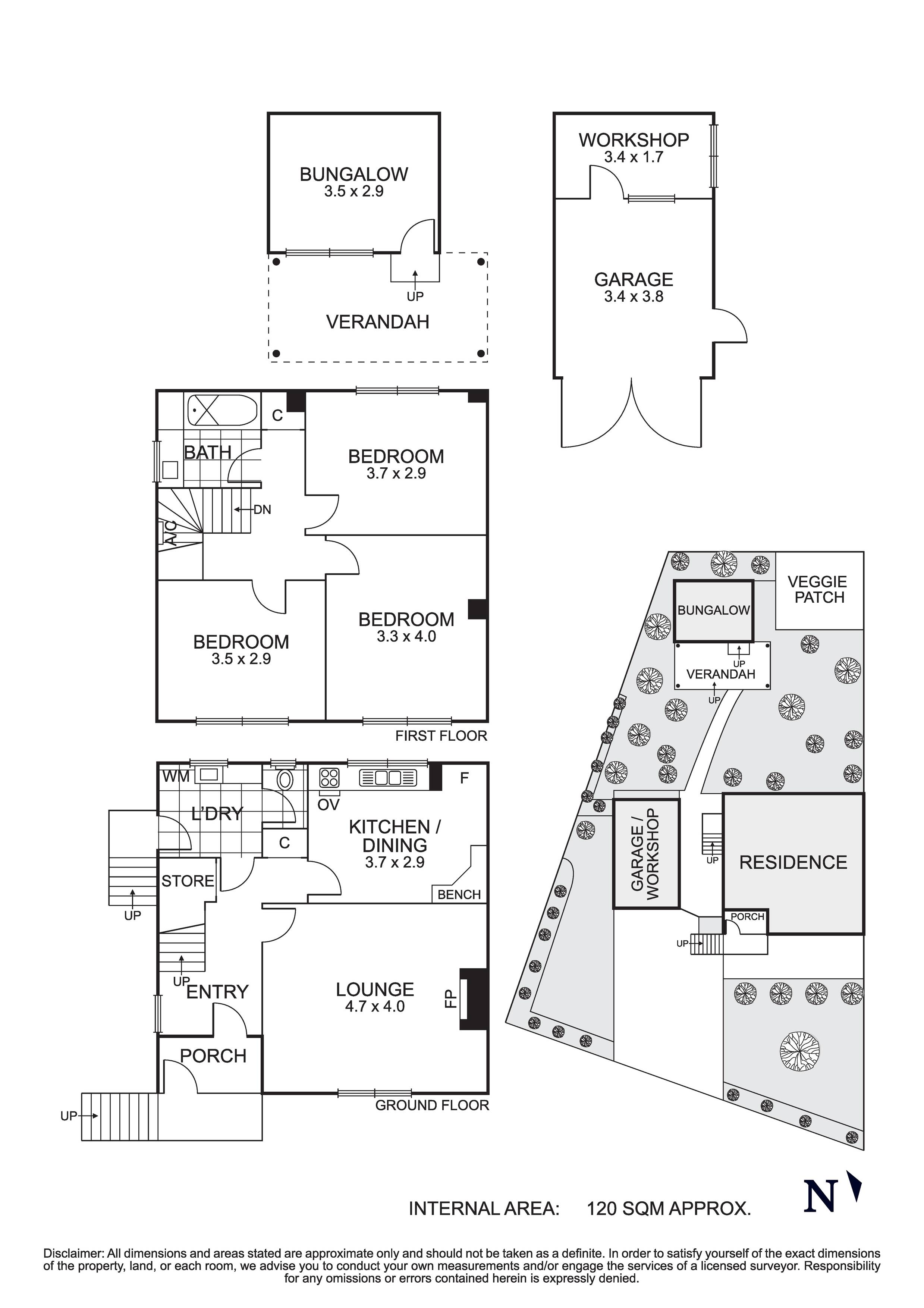
Distinguished Charm, Major Potential

Served as a loving family haven, this neat three bedroom with external studio, double-storey period home delivers exciting potential to enhance/personalise (Subject to Council Approval); directly opposite childcare and within the Coburg High zone. Beyond the distinguished façade, hardwood finishes including floors and doors increase original appeal. The lounge featuring a mantled open fireplace offers relaxation and the neat kitchen/meals boasts gas cooking appliances. An internal laundry leads to the leafy backyard surrounded by citrus and pomegranate trees, while the outdoor studio can be converted into a home office. Double-sized bedrooms share the tidy bathroom/separate WC. Comprising ducted heating, split system, garage shed and driveway off-street-parking. Moments to Pentridge Village, Merri Creek Trail, multiple schools, Sydney Road amenities and transport.

Agent

Jarrod Couch

0413 744 301

Office Contact

Barry Plant Coburg

03 9350 1155

Coburg
VIC 3058

Number of Residents
26,574
Median Sale Price
$950,000
Median Rental Price
$725p/w
Powered by Proptrack

Visit the Coburg Suburb Profile for detailed market insights and area information.