32
soldHouse

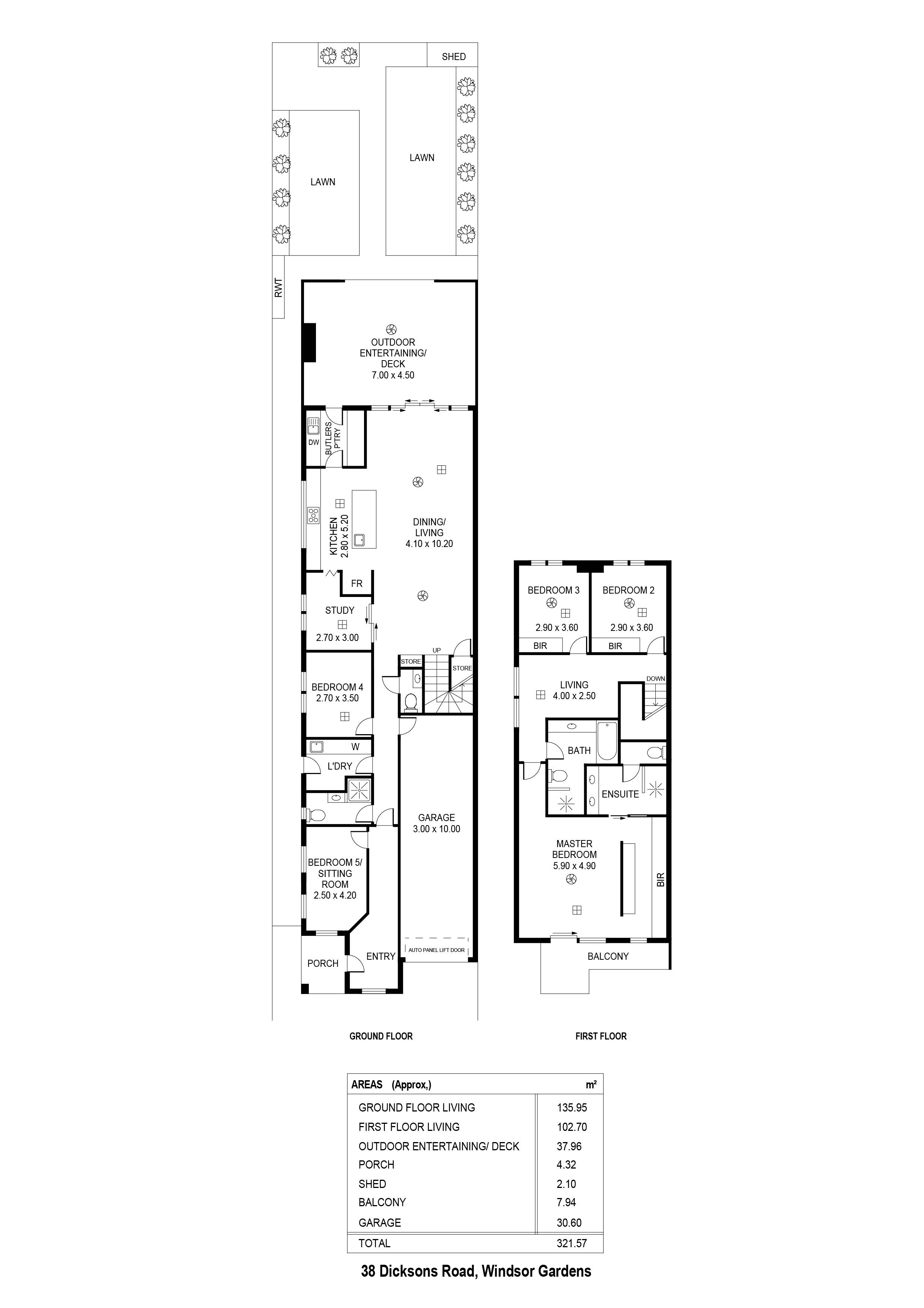
38 Dicksons Road
Windsor Gardens SA 5087
House
5
4
2
352 (approx)
$600,000Mon 27th November 2017
$600,000
Spacious and Convenience for ALL!
Built in 2013 this Torrens Title home is sure to impress upon inspection. Absolutely stunning at every turn, the home is ideal for the busy modern family who likes their own space, as well as entertaining with family and friends.
You will love the open plan kitchen/living area that flows out to an undercover custom built deck, and neatly manicured back garden. The kitchen also has its own butler's pantry which has been great when hosting parties.
The home comprises of 5 bedrooms, plus a study. There are 4 bathrooms which makes the busy morning rush easier for all. The grand master bedroom features its own balcony, walk in robe and ensuite bathroom.
Offering excellent value in the growing suburb of Windsor Gardens, just 10km from Adelaide. Close by you have easy access to the O-Bahn and the newly renovated Gilles Plains shopping centre. On your door step you have the Windsor Gardens shops and medical centre. Linear park is also down the road with play ground and bbq facilities.
For further information, please call Kevin Nguyen on 0413 205 414.
Please click on the following link to view the property video:
https://youtu.be/Jt7t1RMxFkM
Features Include:
2.7 meter high ceilings
Ducted reverse cycle heating and cooling
Security system
5 bedrooms plus a study
4 bathrooms
Impressive entertaining deck with gas outlet
Private and secure back garden ideal for the children to play in
2 car garage with internal access into the home
Private balcony
Land size 352m2
House size 321m2 (Approx)
LED 6W energy efficient down lights
Tool shed
Rain water tank plumbed to toilets
Acrylic and stone bench tops
Low maintenance manicured gardens
Close by to the the Paradis interchange and O-Bahn
Walking distance to Linear Park and the play ground
Specifications:
Land Size: 352m2 (approx.)
Build Size: 321.57m2 (approx.)
Built: 2013
C/T: 6093/840
LGA: Port Adelaide Enfield
Zoning: R'64
You will love the open plan kitchen/living area that flows out to an undercover custom built deck, and neatly manicured back garden. The kitchen also has its own butler's pantry which has been great when hosting parties.
The home comprises of 5 bedrooms, plus a study. There are 4 bathrooms which makes the busy morning rush easier for all. The grand master bedroom features its own balcony, walk in robe and ensuite bathroom.
Offering excellent value in the growing suburb of Windsor Gardens, just 10km from Adelaide. Close by you have easy access to the O-Bahn and the newly renovated Gilles Plains shopping centre. On your door step you have the Windsor Gardens shops and medical centre. Linear park is also down the road with play ground and bbq facilities.
For further information, please call Kevin Nguyen on 0413 205 414.
Please click on the following link to view the property video:
https://youtu.be/Jt7t1RMxFkM
Features Include:
2.7 meter high ceilings
Ducted reverse cycle heating and cooling
Security system
5 bedrooms plus a study
4 bathrooms
Impressive entertaining deck with gas outlet
Private and secure back garden ideal for the children to play in
2 car garage with internal access into the home
Private balcony
Land size 352m2
House size 321m2 (Approx)
LED 6W energy efficient down lights
Tool shed
Rain water tank plumbed to toilets
Acrylic and stone bench tops
Low maintenance manicured gardens
Close by to the the Paradis interchange and O-Bahn
Walking distance to Linear Park and the play ground
Specifications:
Land Size: 352m2 (approx.)
Build Size: 321.57m2 (approx.)
Built: 2013
C/T: 6093/840
LGA: Port Adelaide Enfield
Zoning: R'64