Chat with us, powered by LiveChat
19

sold

Acreage Semi-Rural
459 Sayers Road, Hoppers Crossing, VIC 3029 - Thumbnail 1 - 19/08/2020
459 Sayers Road, Hoppers Crossing, VIC 3029 - Thumbnail 2 - 19/08/2020+ 16

459 Sayers Road
Hoppers Crossing VIC 3029

Acreage Semi-Rural

5
2
6
4005 (approx)
Wed 6th January 2021

Agent

Moufid (Mark) Elhaouli

0400 557 527

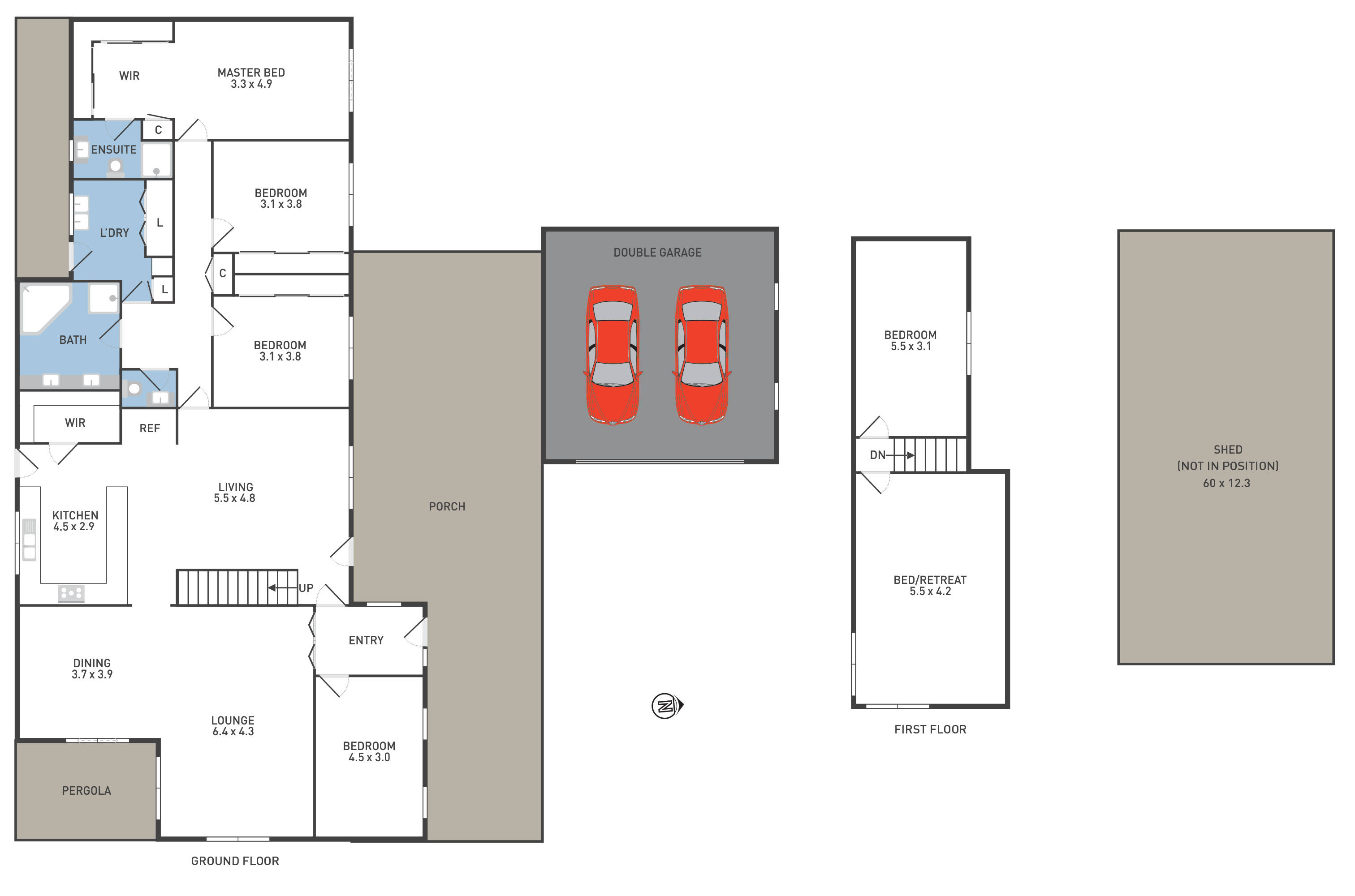
Rare opportunity - A jewel on approx 1 acre.

Set on a 1 acre allotment (4005m2 approx), is this fantastic family home packed with features which offers plenty of scope and options whether you're looking for a lifestyle or commercial opportunity such as a home business, medical centre, childcare centre (STCA) etc.

An exemplary package for the astute enthusiast or keen wishing to relax in comfort, whilst pursuing their passion to live and work from home.

This property features:
- Four bedrooms, all with plush carpeting; master with full-ensuite
- Contemporary floorboards create a streamlined flow, guiding you from the entry foyer towards the meals and family room comforted by split system cooling and ducted heating
- Superb kitchen equipped with stainless steel appliances
- A delightful paved and partially covered outdoor entertaining zone creates the ideal space to enjoy a family BBQ
- Large workshops/equipment sheds 6x12.3M
- Remote entry gate andwide driveway
- Upstairs featuring 2 bedrooms/Retreat rooms ideal for growing families.

Located opposite public transport, Wyndham Village Shopping Centre, walking distance to Thomas Carr College, close proximity to Westbourne Grammar, Al Taqwa College and Tarneit Train Station.

Homes like these that truly set the bar. Hurry! Book your inspection now as an entire acre is certainly not going to last!
Property Features
  • Built-In Robes
  • Close to Schools
  • Air Conditioning
  • Close to Shops
  • Close to Transport
  • Heating
Read more

Agent

Moufid (Mark) Elhaouli

0400 557 527

Hoppers Crossing
VIC 3029

Number of Residents
37,216
Median Sale Price
$665,000
Median Rental Price
$485p/w
Powered by Proptrack

Visit the Hoppers Crossing Suburb Profile for detailed market insights and area information.