Chat with us, powered by LiveChat
23

sold

House
46 Mountain Road, Cockatoo, VIC 3781 - Thumbnail 1 - 10/03/2026
46 Mountain Road, Cockatoo, VIC 3781 - Thumbnail 2 - 10/03/2026+ 20

46 Mountain Road
Cockatoo vic 3781

House

4
2
3
1983 m2 (approx)
Wed 18th March 2026

Agent

Riley Nicholas

0488 501 218

Jacqui Ryder

0433 095 278

Office Contact

Barry Plant Emerald

03 5968 4522

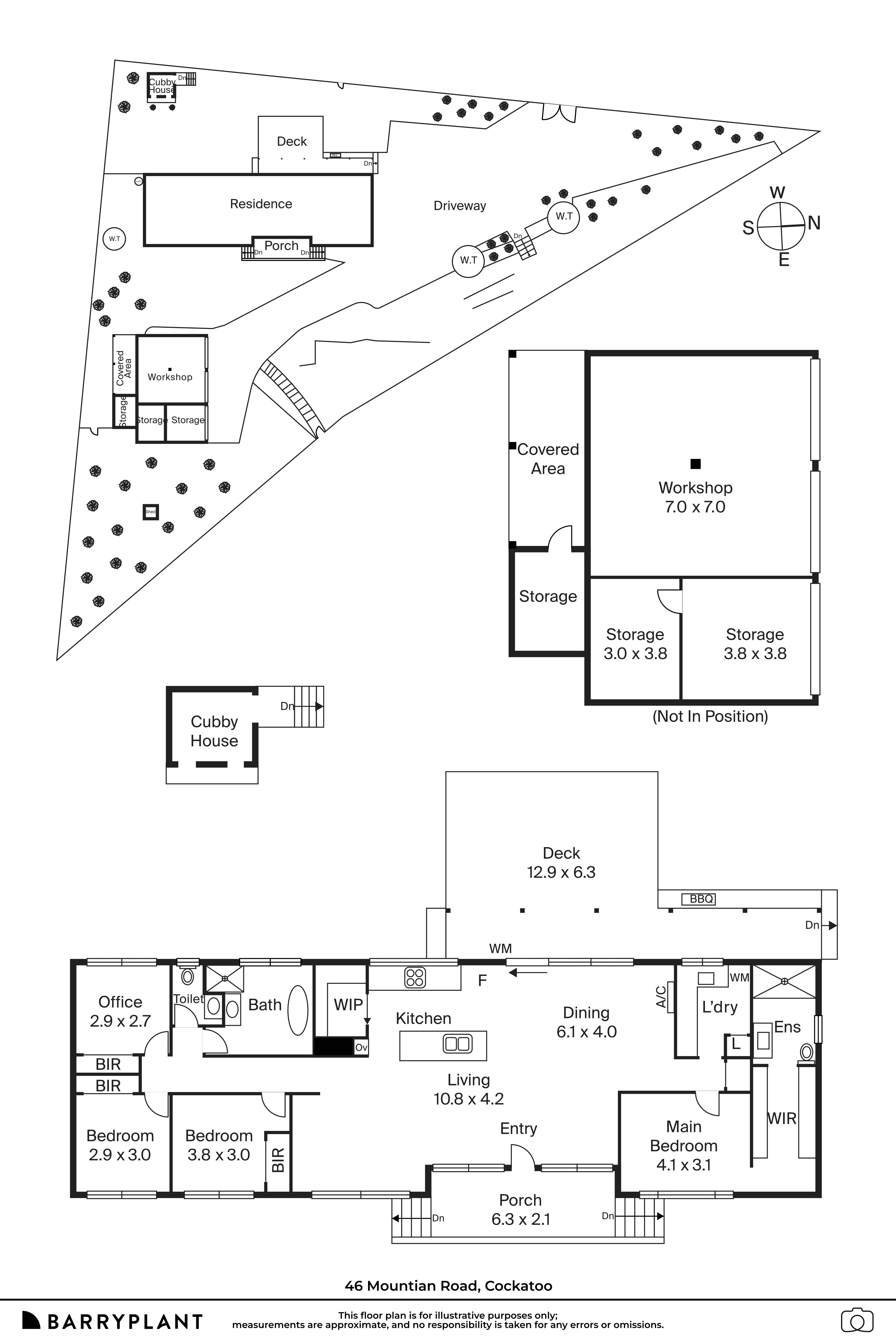
ELEVATED FAMILY LIVING WITH STYLE, SPACE & A MASSIVE SHED

Proudly positioned in one of Cockatoo's most desirable pockets, this beautifully appointed family residence delivers the perfect balance of modern luxury, relaxed hills living and exceptional space for the entire family. Set amongst a tranquil treetop backdrop, the home has been thoughtfully designed to maximise light, comfort and effortless entertaining.

At the heart of the home lies a stunning contemporary kitchen that will delight any home chef. Featuring striking polished concrete waterfall benchtops with breakfast bar seating, quality appliances, an abundance of storage and a well-appointed butler's pantry, it is both functional and visually impressive. The kitchen flows seamlessly into the expansive open plan living and dining zone, complemented by an additional flexible space ideal as a children's play area, reading nook or informal lounge.
Large windows frame beautiful leafy outlooks while allowing natural light to flood the home, creating a warm and inviting atmosphere throughout. Sliding doors open effortlessly to a generous decked entertaining area, offering the perfect setting for year-round gatherings with family and friends while enjoying the peaceful surrounds.

Accommodation is equally impressive with four spacious bedrooms. The privately zoned master suite is positioned at one end of the home and features an oversized walk-in robe along with a luxurious ensuite complete with floor-to-ceiling tiles, excellent storage and a sophisticated, hotel-inspired finish. The remaining bedrooms all include built-in robes and are serviced by a beautifully designed family bathroom showcasing a floating timber vanity and oversized bathtub.

Additional comforts include gas ducted heating, split system heating and cooling, a cosy Coonara wood heater, timber flooring throughout and double-glazed windows ensuring year-round comfort.

Outside, the property continues to impress. From the striking front gates and quality fencing to the expansive lawn areas, every element has been carefully considered. A substantial shed adds incredible versatility and is sure to be the envy of friends, ideal for storage, workshop space, hobbies or additional vehicles.
Conveniently located just a short drive from the vibrant Cockatoo township with its cafés, schools, shops and community amenities, this exceptional property offers a lifestyle opportunity that is increasingly hard to find in the hills.
A home of this calibre will not last long.
Enquire today to arrange your inspection.


Every effort has been made to ensure the information provided is true and accurate at the time of publication; however, prospective purchasers are encouraged to make their own enquiries to verify the details.
Property Features
  • Toilets: 2

Agent

Riley Nicholas

0488 501 218

Jacqui Ryder

0433 095 278

Office Contact

Barry Plant Emerald

03 5968 4522

Cockatoo
vic 3781

Number of Residents
4,408
Median Sale Price
$812,500
Median Rental Price
$618p/w
Powered by Proptrack

Visit the Cockatoo Suburb Profile for detailed market insights and area information.