19
sold
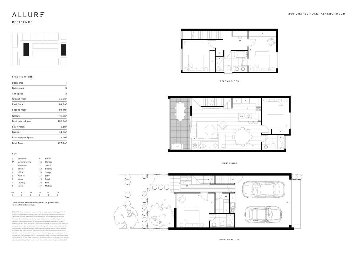
Townhouse

48/199-209 Chapel Road
Keysborough, VIC 3173
Townhouse
4
3
2
Thu 26th August 2021
Agent
Chee-Ky Dunlop
0422 910 881Office Contact
Barry Plant Noble Park
03 8710 0000A superior calibre.
Property Video
Agent
Chee-Ky Dunlop
0422 910 881Office Contact
