Chat with us, powered by LiveChat
5

sold

641 Plenty Road, Preston, VIC 3072 - Thumbnail 1 - 19/05/2019
641 Plenty Road, Preston, VIC 3072 - Thumbnail 2 - 19/05/2019+ 2

641 Plenty Road
Preston VIC 3072

235 (approx)
Wed 3rd May 2017

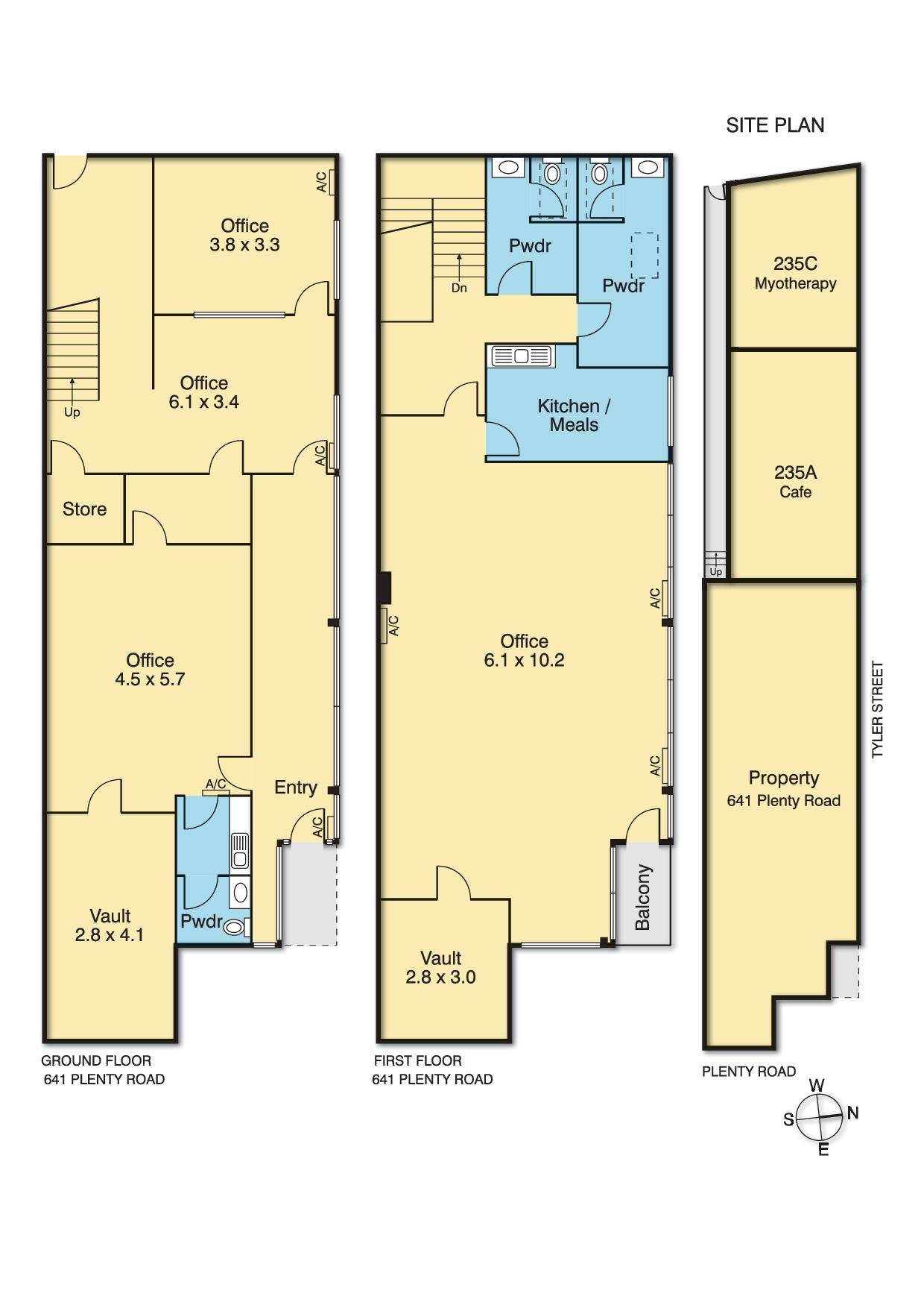
Iconic Corner Investment

641 Plenty Road & 235A Tyler Street, Preston

One title; 3 separate properties / tenancies.
Zoned: C1Z Land area: 235m2 Approx.
641 Plenty Road: ground floor office/ retail + upstairs office/ residence

VACANT:
235A & 235B Tyler Street: Lock up shop leased until 1/7/2018 + 2x5 year options.
235C Tyler Street: Lock up shop/ office leased until 1/4/2018 + 5 year Option.
Potential income, fully leased per annum: $43,500. (Approx Gross)

Suit Owner occupiers, developers or Investors with a long term view.
A rare offering in this inner north growth corridor!

George Metax: 0407 661 615
Michael Lykowski: 0414 369 255

Preston
VIC 3072

Number of Residents
33,790
Median Sale Price
$780,000
Median Rental Price
$677p/w
Powered by Proptrack

Visit the Preston Suburb Profile for detailed market insights and area information.