Chat with us, powered by LiveChat
8

sold

Unit
79 Jolimont Road, Forest Hill, VIC 3131 - Thumbnail 1 - 02/11/2023
79 Jolimont Road, Forest Hill, VIC 3131 - Thumbnail 2 - 02/11/2023+ 5

79 Jolimont Road
Forest Hill VIC 3131

Unit

2
2
3
$800,000Fri 27th October 2023
$800,000

Agent

Harry Fares

0419 667 744

Filippa Ardolic

0477 333 031

Office Contact

Barry Plant Whitehorse

03 9874 3355

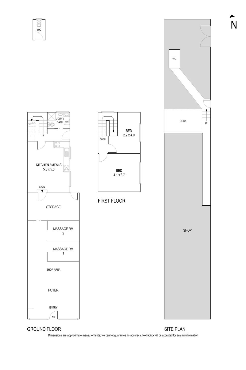
Rare Commercial Real Estate Opportunity!

Calling all keen developers, astute investors, or motivated buyers with a project in mind – don’t miss this rare opportunity to secure a versatile commercial/residential property with Commercial 1 Zoning (C1Z) under schedule DDO4. Rent to a business, work from home, or redevelop into a brand-new multi-storey dwelling (STCA) – the choice is all yours!

The current property enjoys corner street frontage on approx. 174sqm of land, with approx. 84sqm of dedicated retail floor space in what is a highly rare and sought-after location to own commercial real estate. Adding to the appeal is the residential area – Attached and included on the commercial Lease is a 2-bedroom dwelling attached to the property, offering a separate kitchen/meals area, a private bathroom/laundry and 2 large bedrooms upstairs so owner-occupiers can easily work from home and reside on the Premises!

There’s high foot/car traffic for fantastic exposure just opposite Parkmore Primary School, located within minutes’ drive of either The Glen Shopping Centre and Glen Waverley Station or Forest Hill Chase and nearby Nunawading Station. Major arterials bring even further traffic via Springvale Road, Burwood Highway, and the Eastern Freeway.

Opportunity is knocking for the astute investor, so call Harry Fares on 0458 766 958 or Filippa Ardolic on 0477 333 031 to register your interest today!

Agent

Harry Fares

0419 667 744

Filippa Ardolic

0477 333 031

Office Contact

Barry Plant Whitehorse

03 9874 3355

Forest Hill
VIC 3131

Number of Residents
10,780
Median Sale Price
$1,135,000
Median Rental Price
$678p/w
Powered by Proptrack

Visit the Forest Hill Suburb Profile for detailed market insights and area information.